
The Cypress
KILKENNY FARMS WEST – WAUNAKEE
2026 MABA Spring Parade of Homes Model
The St. Jude Dream Home® Showplace is a community-wide fundraiser that benefits the lifesaving mission of St. Jude Children’s Research Hospital.
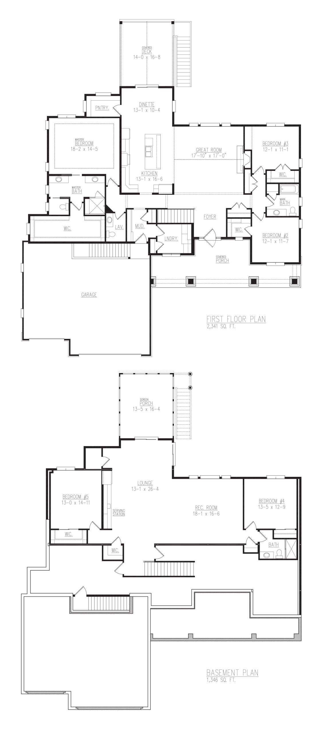
- 2,341 Sq. Ft.
- 3 bedrooms, 2 1/2 baths
- Covered front porch, covered rear deck and lower level screen porch
- 1,346 Sq. Ft. finished lower level adds rec room, lounge with serving station, two additional bedrooms (for a total of 5), and a 3/4 bath
Model Hours: Coming June 2026!
Address: 1605 Ginger Lane, Waunakee, WI 53597
Directions: Kilkenny Farms West is located in Waunakee, WI, off Highway Q, just north of downtown Waunakee. It is accessible via I-39/90/94, exit onto Highway 19, then head west toward Waunakee. Follow WI-19 / Co Hwy Q west, staying on Hwy. Q through the first traffic circle. At the second traffic circle, take the third exit onto Co Hwy Q / Co Rd Q / S. Century Ave. Follow 1.3 mi. then turn right onto Peaceful Valley Pkwy. Turn left onto S. Holiday Dr. Turn right on Winn Dr. Turn left on Atlas Tr. Turn right on Moll Dr. Turn right on Ginger Ln. to model on left.
GPS: 43.171514, -89.470304



