
The Redwood
KILKENNY FARMS WEST – WAUNAKEE
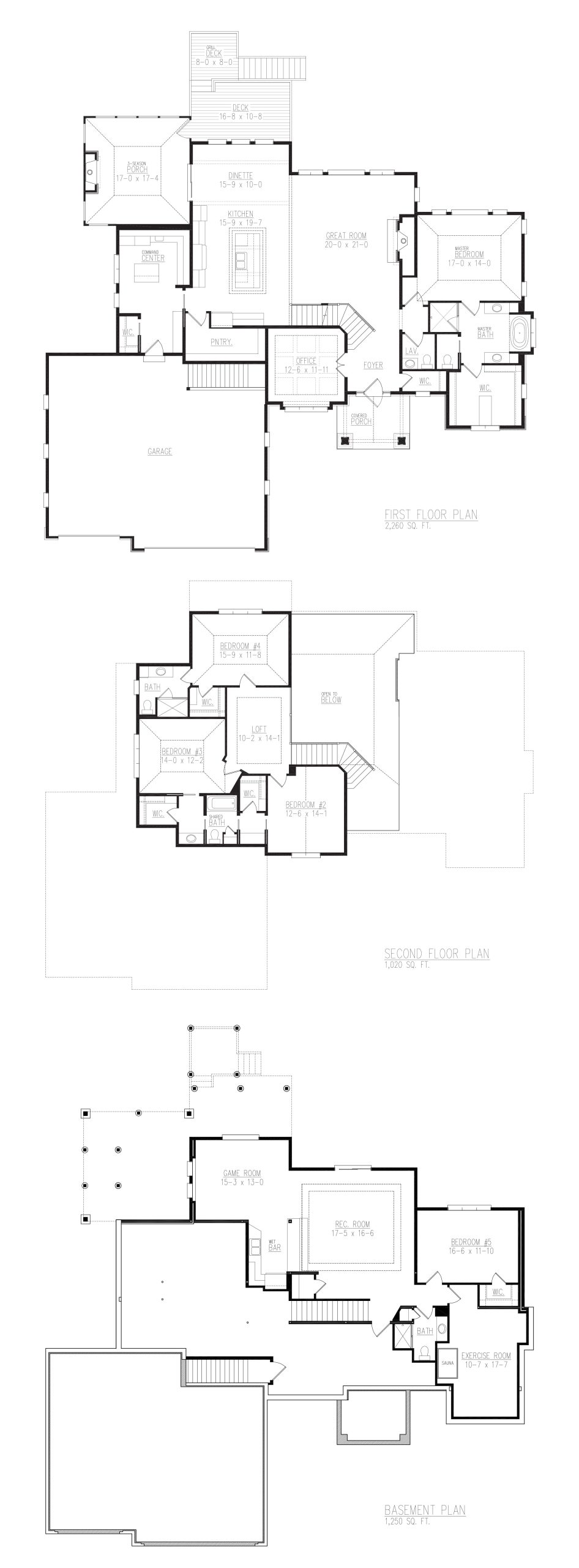
- 3,280 Sq. Ft.
- 4 bedroom, 3.5 baths
- 3-car garage
- Home office, large family command center, 3-season porch, second floor loft
- 1,250 Sq. Ft. finished lower level adds rec room, game room, wet bar, exercise room with sauna, fifth bedroom and 3/4 bath
Model Hours: Coming Soon!
Address: 1400 Moll Drive, Kilkenny Farms West, Waunakee
Directions: Kilkenny Farms West is located in Waunakee, WI, off Highway Q, just north of downtown Waunakee. It is accessible via I-39/90/94, exit onto Highway 19, then head west toward Waunakee. Follow WI-19 / Co Hwy Q west, staying on Hwy. Q through the first traffic circle. At the second traffic circle, take the third exit onto Co Hwy Q / Co Rd Q / S. Century Ave. Follow 1.3 mi. then turn right onto Peaceful Valley Pkwy. Turn left onto S. Holiday Dr. Turn right on Winn Dr. Turn left on Atlas Tr. Turn right on Moll Dr. to model.
GPS: 43.170651, -89.470674



