
The Brooklyn
QUIETWOOD – MENOMONEE FALLS
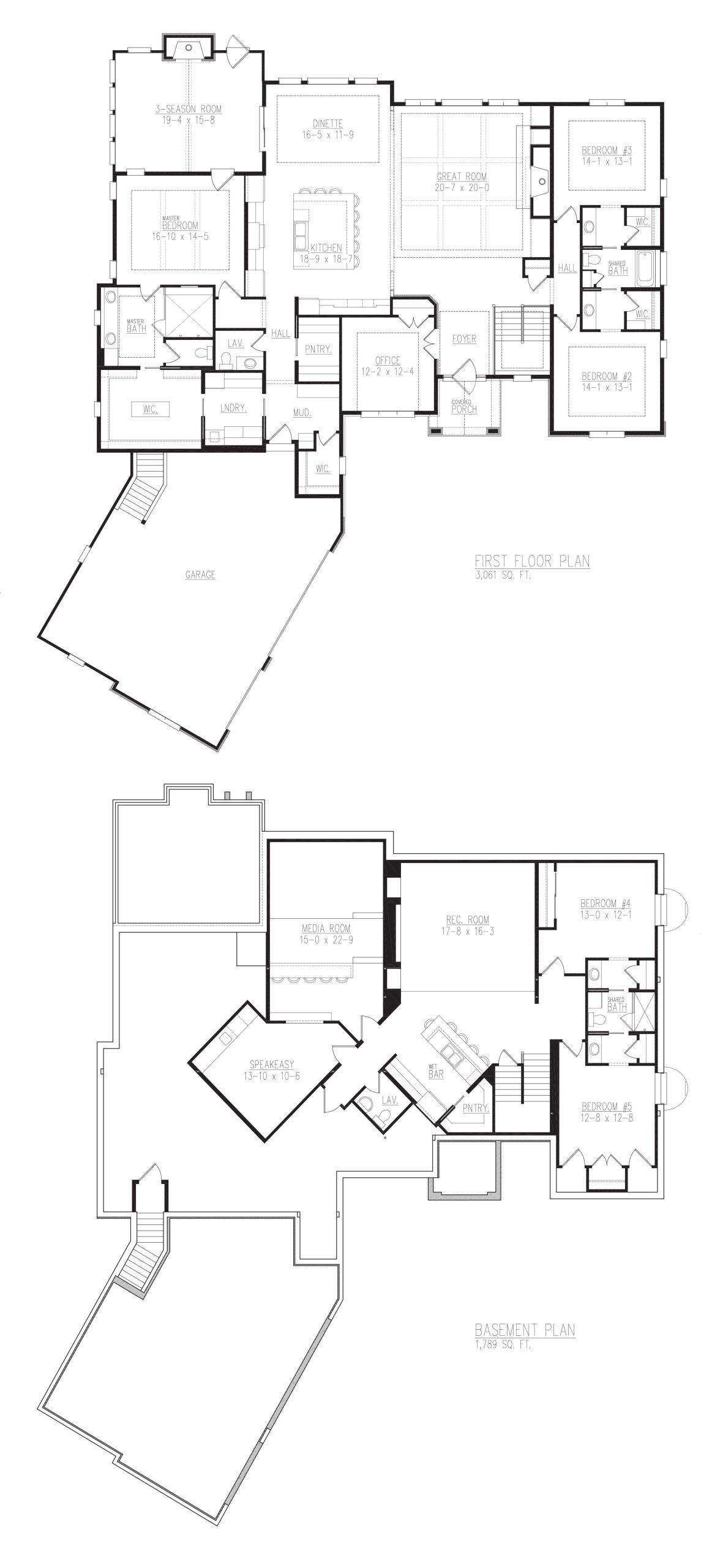
2026 MBA Parade of Homes Model
- 3,061 Sq. Ft.
- 3 bedrooms, 2 1/2 baths
- Kitchen with large island and walk-in pantry
- 3-Season room, home office
- 1,789 Sq. Ft. finished lower level adds rec room, wet bar with walk-in pantry, guest bath, media room and speakeasy, plus tow additional bedrooms (5 total) and shared bath
Model Hours: Coming soon!
Address: W185N5022 Emerald Hills Drive, Menomonee Falls
Directions: I-45, exit Silver Spring Drive. West on One Milwaukee Road to subdivision entrance. East on Quietwood Drive, then right onto Emerald Hills Drive, to model on the left (just past Woodfield Way).



