
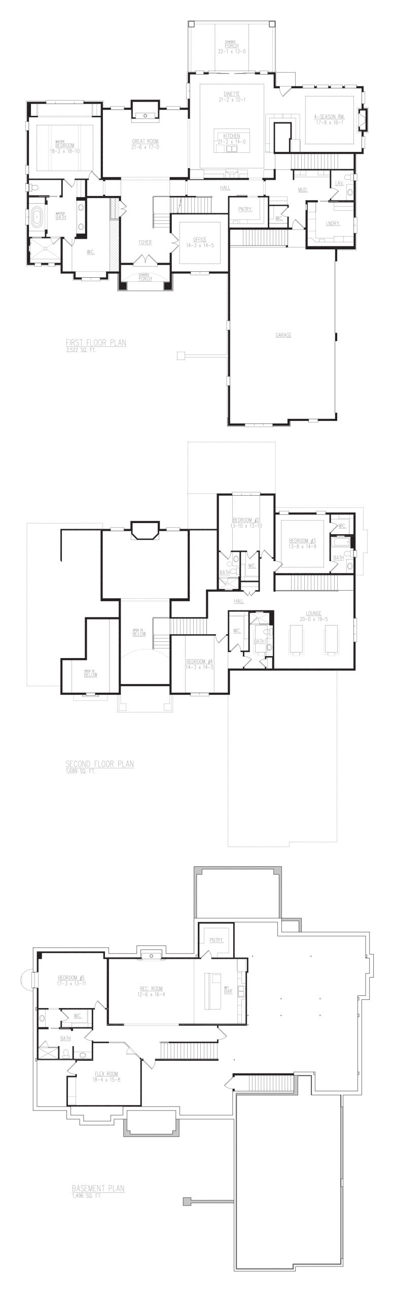
The Greenwood
BARK RIVER CONSERVANCY – SUMMIT
Now Open for Dusty Boot Tours!
Stop by for a sneak peek behind the scenes at our newest model during the final stages of construction!
The Greenwood will be open for “Dusty Boot” tours for a limited time. It’s your opportunity to look around the home, ask questions and learn about our building process. Stop by our mobile office at the subdivision entrance for model and community info. And please, pardon the dust while our crews finish the work.
- 5,211 Sq. Ft.
- 4 bedroom, 4.5 baths
- 4-car side entry garage
- Home office, 4-season room, covered porch, second floor lounge
- 1,496 Sq. Ft. finished lower level adds rec room, wet bar, walk-in pantry, flex room, fifth bedroom and 3/4 bath
Model Hours: Saturdays & Sundays, noon to 4 pm, or by appointment. Closed holiday weekends.
Address: 1187 Meadow Park Place, Bark River Conservancy, Summit
Directions: I-94, exit 283 onto N. Sawyer Rd. South on N. Sawyer Rd. to Genesee Lake Rd. West onto Genesee Lake Rd. South onto Meadow Park Ln. at subdivision entrance.
GPS: 43.047021, -88.450958
Click image to see a gallery from a previous Greenwood model.



