Bark River Conservancy
Village of Summit
VILLAGE OF SUMMIT
Bark River Conservancy
Welcome to Bark River Conservancy, an exclusive new Victory Companies subdivision nestled in the Village of Summit, WI. Tucked along the scenic Bark River and surrounded by the sparkling lakes that define Lake Country, this intimate community offers a rare blend of natural beauty, privacy, and prime location.
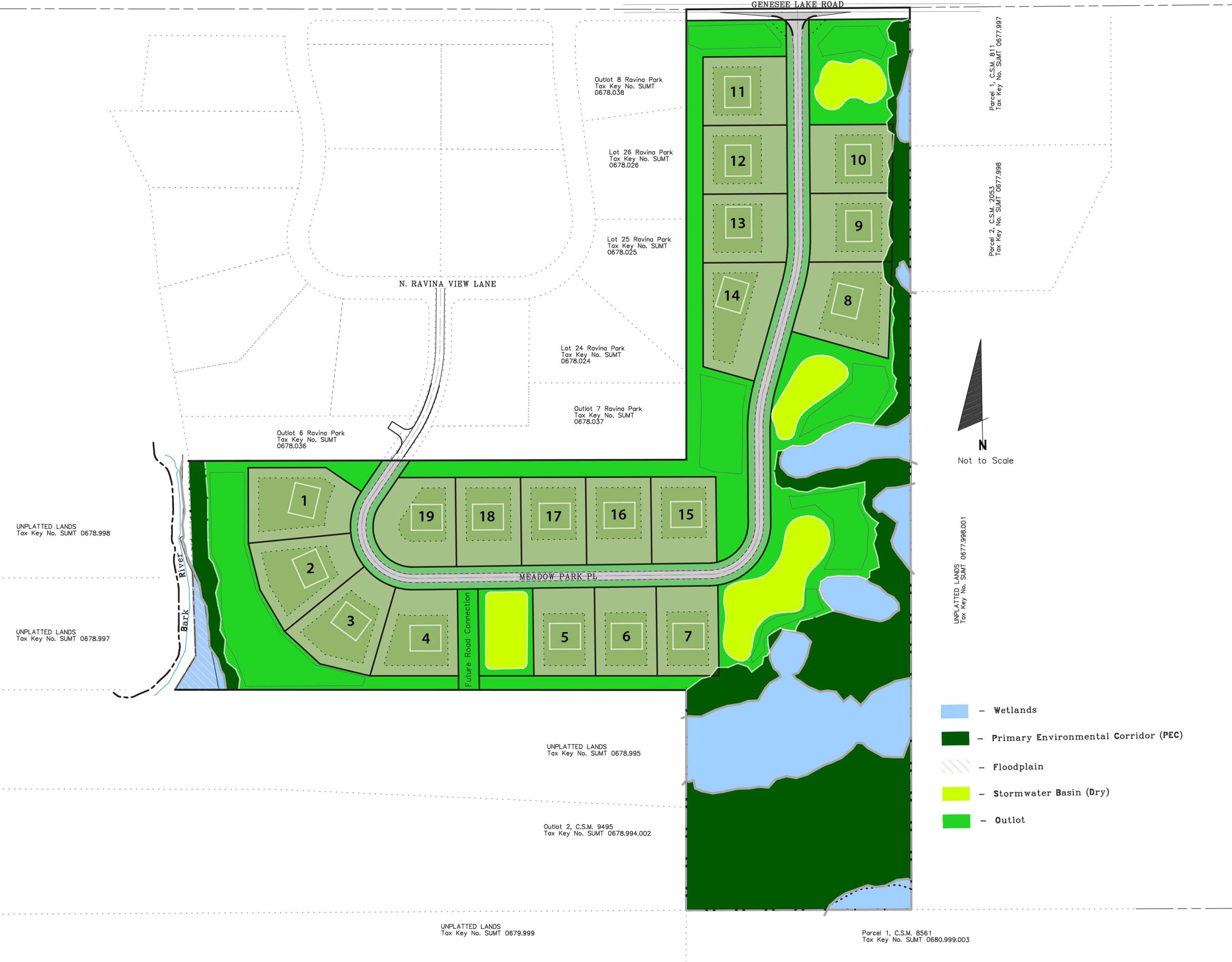
With only 19 generously sized lots, Bark River Conservancy was thoughtfully designed for those who value space, serenity, and a connection to nature, without sacrificing convenience. Enjoy the charm of a quiet, boutique neighborhood while being just minutes from the vibrant downtowns of Delafield and Oconomowoc. Whether it’s boutique shopping, upscale dining, lakeside recreation, or access to top-rated schools and amenities, everything you love about Lake Country living is at your doorstep.
Here, you’ll find the perfect balance: tranquil, wooded surroundings and riverfront views, with the lifestyle and conveniences of two thriving communities just a short drive away. Discover Bark River Conservancy – where nature meets neighborhood in a way that feels both exclusive and welcoming.
Features of Bark River Conservancy Include:
- 19 generously sized home sites
- Boutique community in the heart of Lake Country
- Well and septic
- Oconomowoc Area School District
- Brokers Welcome!
Victory Homes of Wisconsin Homesites:
- Lot #1 – 60,994 Sq. Ft. – Exposure: Partial, 5′ – List Price: Accepted Offer
- Lot #2 – 57,303 Sq. Ft. – Exposure: Partial, 5′ – List Price: Accepted Offer
- Lot #3 – 57,164 Sq. Ft. – Exposure: Partial, 5′ – List Price: SOLD
- Lot #4 – 55,553 Sq. Ft. – Exposure: Partial, 5′ – List Price: Accepted Offer
- Lot #5 – 46,220 Sq. Ft. – Exposure: Partial, 5′ – List Price: SOLD
- Lot #6 – 46,647 Sq. Ft. – Exposure: None – List Price: SOLD
- Lot #7 – 47,091 Sq. Ft. – Exposure: Partial, 5′ – List Price: SOLD
- Lot #8 – 64,199 Sq. Ft. – Exposure: Partial, 5′ – List Price: Accepted Offer
- Lot #9 – 47,887 Sq. Ft. – Exposure: Partial, 5′ – List Price: $264,900
- Lot #10 – 48,343 Sq. Ft. – Exposure: Partial, 5′ – List Price: SOLD
- Lot #11 – 48,850 Sq. Ft. – Exposure: None – Contact VCI – Victory Homes of Wisconsin Greenwood Model Coming Soon!
- Lot #12 – 49,124 Sq. Ft. – Exposure: None – List Price: $254,900
- Lot #13 – 49,277 Sq. Ft. – Exposure: None – List Price: $254,900
- Lot #14 – 65,177 Sq. Ft. – Exposure: None – List Price: $244,900
- Lot #15 – 47,905 Sq. Ft. – Exposure: Partial, 5′ – List Price: $254,900
- Lot #16 – 48,317 Sq. Ft. – Exposure: Partial, 5′ – List Price: $254,900
- Lot #17 – 48,708 Sq. Ft. – Exposure: Partial, 5′ – List Price: $254,900
- Lot #18 – 49,100 Sq. Ft. – Exposure: Partial, 5′ – List Price: $254,900
- Lot #19 – 55,999 Sq. Ft. – Exposure: Partial, 5′ – List Price: $249,900
Contact Victory Homes of Wisconsin for Current Pricing and Homesite Availability
Directions: I-94, exit 283 onto N. Sawyer Rd. South on N. Sawyer Rd. to Genesee Lake Rd. West onto Genesee Lake Rd. South onto Meadow Park Ln. at subdivision entrance.
Request More Info
Visit Our Open Models

Call or Email for details today!
Phone:
866-705-7000
Email:
sales@vci-wi.com
Contact us for Neighborhood Information
Contact us today for a neighborhood tour or additional options to visit.


