Bella Vista Estates
Village of Menomonee Falls
VILLAGE OF MENOMONEE FALLS
Bella Vista Estates Subdivision
Bella Vista, aptly named for its breathtaking vistas, is a haven for those seeking a fusion of contemporary living and natural beauty in Menomonee Falls. This exclusive community offers a number of full and partial exposure lots, allowing you to choose from a variety of home plans.
Step into a world where every day begins with a panorama of nature’s splendor. Bella Vista is strategically positioned to capture stunning views, ensuring that residents wake up to inspiring mornings and end their days with peaceful sunsets. The proximity to Menomonee Park and surrounding nature trails invites you to immerse yourself in the tranquility of the outdoors, right at your doorstep.
Yet, this picturesque haven does not compromise on urban conveniences. A short drive from the bustling downtown area, Bella Vista offers easy access to a rich selection of shopping and dining experiences. It’s a community that perfectly balances the calm of the countryside with the excitement of city life. A convenient 30 minutes outside Milwaukee makes your commute into the city and back home easy. But that’s not all; Bella Vista Estates is within the reputable Sussex Hamilton School District. This district is renowned as one of the highest-achieving districts in the state of Wisconsin, giving you the perfect blend of suburban tranquility and access to outstanding educational opportunities.
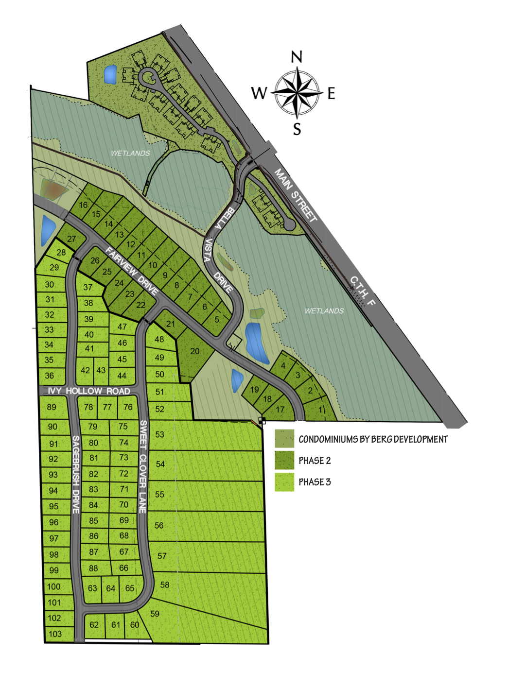
Features of Bella Vista Estates Include:
- Country setting in a suburban paradise
- Protective covenants
- Municipal sewer and water
- Hamilton School District
Victory Homes of Wisconsin Homesites:
- Lot #24 – 18,293 Sq. Ft. – Exposure: Partial – List Price: Contact VCI – Allan Builders Charleston Model
-
Lot #29 – 18,236 Sq. Ft. – Exposure: Full – List Price: Contact VCI – The Savannah – Allan Builders 2025 Parade of Homes Model
-
Lot #50 – 19,974 Sq. Ft. – Exposure: Full – List Price: $240,900
- Lot #51 – 28,932 Sq. Ft. – Exposure: Full – List Price: SOLD
-
Lot #61 – 17,444 Sq. Ft. – Exposure: Partial – List Price: SOLD
Contact Victory Homes of Wisconsin for Current Pricing and Homesite Availability
Directions: Bella Vista Estates is located in the Village of Menomonee Falls on the south side of Main Street, just east of the Townline Road Roundabout. From I-94 take exit 295, Hwy F north for 4.5 miles to Lisbon Road/Hwy K. Turn right on Hwy K to Townline Road. Turn left on Townline Road and follow 2 miles until roundabout. Turn the first right onto Main Street. Subdivision entrance will be on the southside of Main Street.
Request More Info
Visit Our Open Models

Call or Email for details today!
Phone:
866-705-7000
Email:
sales@vci-wi.com
Contact us for Neighborhood Information
Contact us today for a neighborhood tour or additional options to visit.


